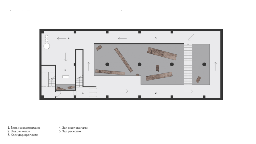
Музей представляет собой уникальное пространство, где посетители могут погрузиться в атмосферу древнерусской культуры и истории через раскопки и артефакты, найденные на месте древней крепости.
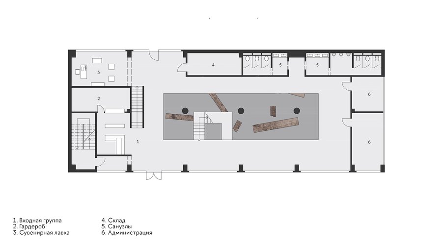
Концепция заключается в том, что здание выстроено вокруг раскопок и уходит вниз под землю. Часть здания над землей выполнена в современном минималистичном стиле, там много света и свободного пространства. Подземная же часть, где находится постоянная экспозиция музея, отличается большей фактурностью и приглушенным освещением.

Исходный размер 1920x1080
Мудборды
Планировочное решение

Исходный размер 1920x1080
Входная группа
Исходный размер 1920x1080
Сувенирная лавка
Исходный размер 1920x1080
Сувенирная лавка
Исходный размер 1920x1080
Зал раскопок
Исходный размер 1920x1080
Коридор крепости
Исходный размер 1920x1080
Зал раскопок
Исходный размер 1920x1080
Зал раскопок
Исходный размер 1920x1080
Зал раскопок
Исходный размер 1920x1080
Зал с коллекцией артефактов







