[геолокация]: Московская область, городской округ Мытищи, г. Мытищи, ул. Силикатная
Основной фокус проекта — функциональность, антивандальность и комфорт.
Роль цвета в проекте заключается в постепенном становлении ребенка, и перехода с каждым годом на новую ступень жизни и познания.
зонирование и исходная планировка

концепция

айдентика
мудборд
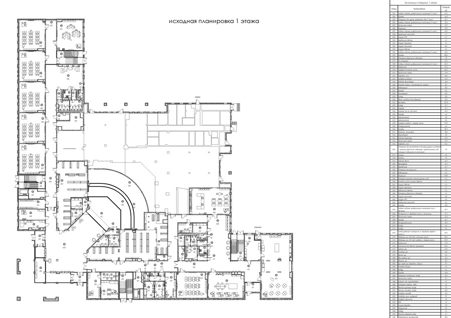
[1 этаж]
визуализируемые помещения: холл
холл
холл
холл
гардероб начальных классов
гардероб начальных классов
визуализируемые помещения: кабинет начальных классов
кабинет начальных классов
кабинет начальных классов
рекреация начальных классов
рекреация начальных классов
рекреация начальных классов
рекреация начальных классов
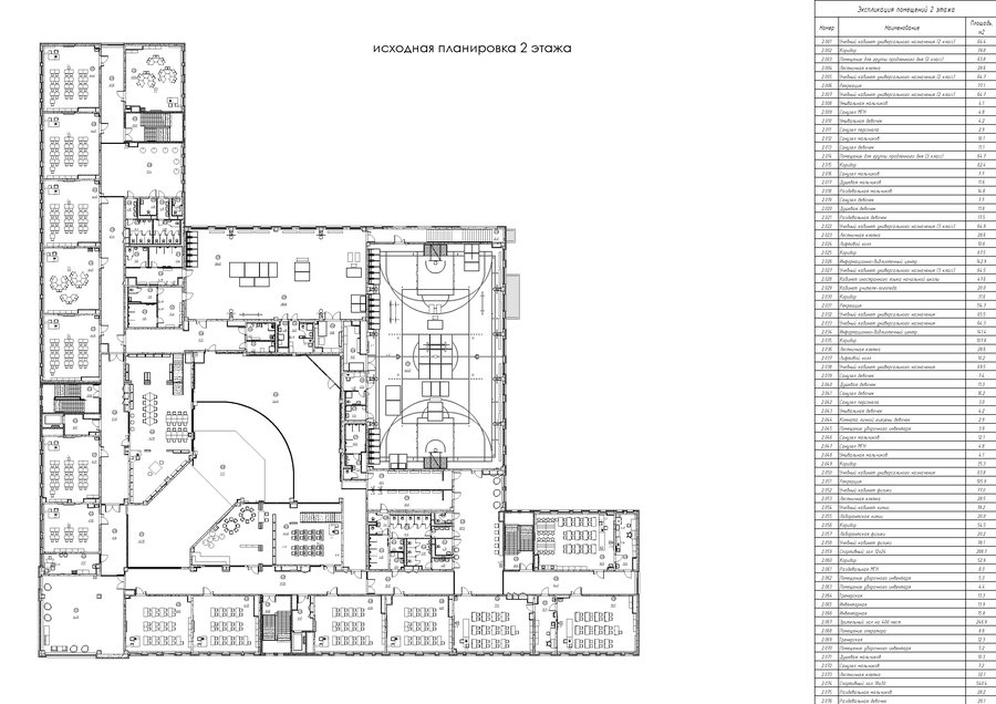
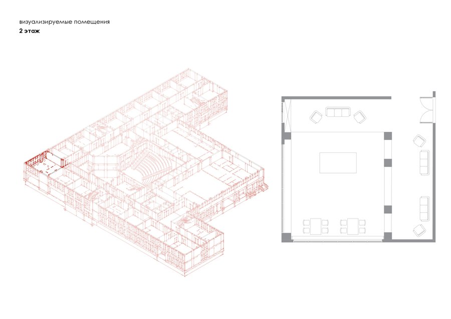
[2 этаж]
визуализируемые помещения: библиотека
библиотека [общественная зона]
библиотека [общественная зона]
спортзал
спортзал
рекреация средних и старших классов
рекреация средних и старших классов
рекреация средних и старших классов
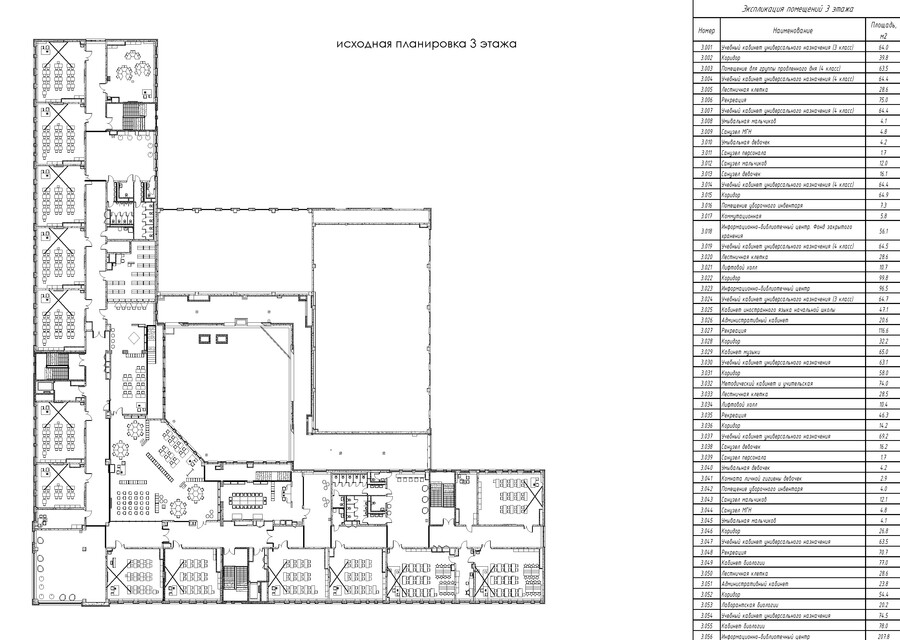
[3 этаж]
кабинет старших классов
кабинет старших классов





















